「利回り」は、当該不動産の1年間の予定賃料収入の不動産取得対価に対する割合であり、公租公課その他当該物件を維持するために必要な費用の控除前のものです。
また、予定賃料収入が確実に得られる事を保証するものではありません。

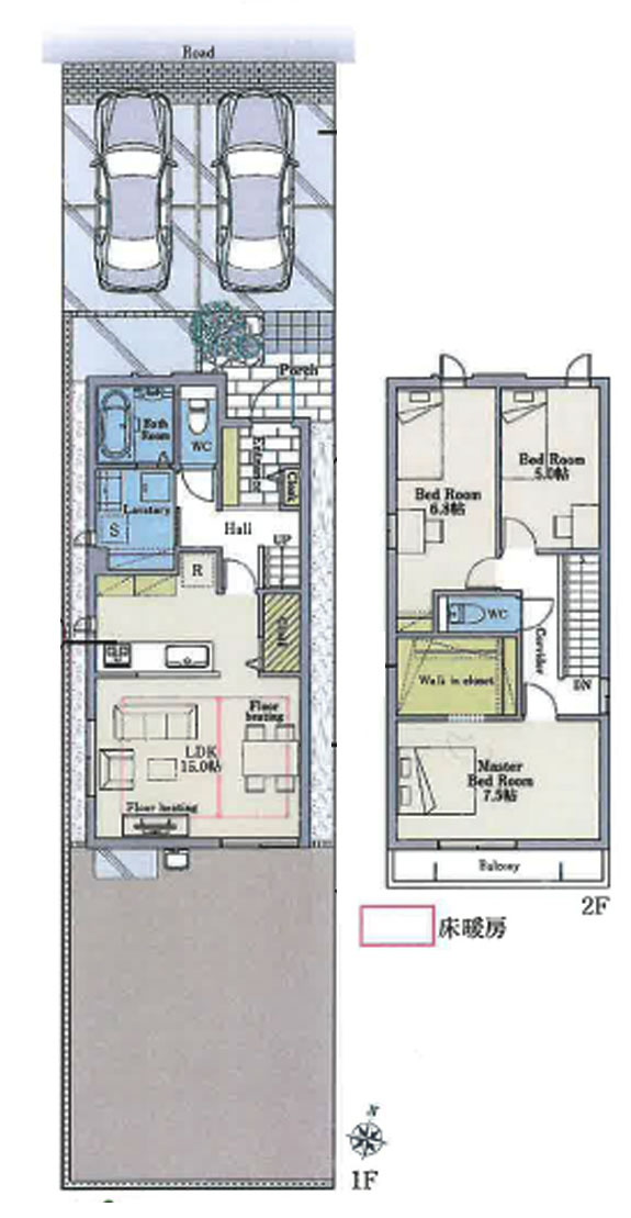
C3990万(土地146.11㎡建物89.42㎡) L4990万(土地165.25㎡建物102.20㎡)N4990万(土地165.84㎡建物105.66㎡)

※地図上の物件位置は近隣に物件が所在することを表すものであり、実際の物件所在地とは異なる場合がございます。
| 所在地 | 愛知県尾張旭市井田町3丁目 36-4外、36-6外 | ||
|---|---|---|---|
| 交通 |
名鉄瀬戸線 「三郷」駅
徒歩14分 名鉄瀬戸線 「尾張旭」駅 徒歩27分 名鉄瀬戸線 「水野」駅 徒歩37分 |
||
| 価格 | 3,990万円 | ||
| 間取り |
3LDK
LDK 15.0帖 1室 / 洋室 5.0帖 1室 / 洋室 6.8帖 1室 / 洋室 7.5帖 1室 / |
||
| 築年月(築年数) | 2024年 6月(築1年) | 主要採光面 | 南 |
| 建物構造 | 木造 | 階数 | 2階建 |
| 私道負担面積 | セットバック | ||
| 接道状況 | 一方 (北側 公道6.0m) | ||
| 建ぺい率/容積率 | 60%/ 200% | 土地権利 | 所有権 |
| 地目 | 宅地 | 地勢 | 平坦 |
| 土地の権利形態 | |||
| 都市計画 | 市街化区域 | 用途地域 | 第二種中高層住居専用地域 |
| その他法令上の制限 | |||
| 国土法届出 | 不要 | 取引態様 | 一般媒介 |
| 現況 | 空家 | 引渡し | 相談 |
| リフォーム | |||
| 駐車場 | 空き台数:2台 、 有 | ||
| 設備条件 | 公共下水 / 公営水道 / 都市ガス / 宅配ボックス / 電気有 / 食器洗い乾燥機 / 浴室乾燥機 | ||
| その他条件 | |||
| 備考 |
・未入居物件 ・C、D木造 E~N鉄骨造 ・太陽光発電3.19kw搭載 ・エネファーム・エアコン2台(LDK、主寝室) ・床暖房(LD) ・電気自動車充電用コンセント |
||
| 周辺の学校 | |||
| 物件番号 | 96109393 | ||
| 情報公開日 | 2026年1月11日 | 次回更新予定日 | 2026年1月25日 |
| 取引条件の有効期限 | 2026年1月25日 | ||
| 取扱い会社 |
トーエー不動産株式会社 〒488-0011 愛知県尾張旭市東栄町1丁目16-26 愛知県知事(10)第13338号 |
||
| 所在地 | 物件の住所を表示。(詳細住所は表示していない場合もある) | ||
|---|---|---|---|
| 交通 | 物件(部屋)の沿線駅・バス停を表示。(複数駅・バス停の利用が可能な場合は最大3件まで) | ||
| 間取り/詳細 | 数字は居室数を表示。LDKはそれぞれ「リビング」「ダイニング」「キッチン」、S(納戸)とは「納戸」「サービスルーム」「マルチルーム」「フリールーム」など建築基準法第28条に適合していないため、居室と認められない納戸その他の部分を表す。 | ||
| 価格 | 販売されている住戸の価格を表示。仲介手数料は含まない。 | ||
| 管理費 | 共同住宅の設備その他共用部分の維持および管理をするために必要な費用を表示。 | ||
| 修繕積立金 | 共用部分の修繕のために積立てる金額を表示。 | ||

【間取り】